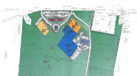
| Managing traffic at South Point to prevent erosion and damage of historic sites is one of the aims. Image from South Point Resources Management Plan |
SOUTH POINT RESOURCES MANAGEMENT PLAN will be the topic of an Environmental Impact Assessment and community organizations and government agencies are invited to weigh in with comments by July 26. The plan, sponsored by the Hawaiian Home Lands Trust, includes some changes at South Point, including an entrance gate, security booth, parking areas and a pedestrian trail and emergency access road to Mahana Bay and Green Sand Beach.
To carry out the Environmental Impact Assessment, Department of Hawaiian Homelands has hired Townscape, Inc. Environmental & Community Planning, the O`ahu firm that also worked on the Ka`u Community Development Plan.
According to a letter from Dr. Angela Fa`anunu, of Townscape, the EA is required by Hawai`i law for the implementation of the South Point Resources Management Plan. "DHHL is proposing to implement the RMP in order to protect and restore natural and cultural resources on DHHL lands at South Point. The project area is located in the ahupua`a of Kama`oa-Pou`ueao," Fa`anunu writes in the letter sent to various stakeholders.
According to Townscape, South Point Resources Management Plan was developed after gathering information from consultations with community members from Ka`u. See notes online from one of the community SpeakOut sessions in Na`alehu.
There were two community meetings and a series of talk-story sessions. Fa`anunu reports that through the outreach process, four major goals were identified for South Point:
Restore, preserve and protect cultural and natural resources;
Perpetuate native Hawaiian culture; values, history and language for future generations;
Provide a safe, clean and friendly environment; and
Generate revenue in order to sustainably fund cultural and natural resources activies and provide economic opportunities for DHHL beneficiaries and their families.
The entire South Point Resources Management Plan can be read online.
The letter offers the highlights and says that "Unregulated access to DHHL lands at South Point has compromised the integrity of its heritage sites and of coastal ecosystems. Specifically, heavy use of recreational trucks, ATVs, and motor bikes has not only destroyed sacred sites but has resulted in widespread soil and sand erosion. The unregulated use of off-road vehicles, coupled with the site's exposure to the prevailing winds, has left the natural and cultural resources of South Point in critical condition."
| Comments for the Draft Environmental Assessment for the South Point Resources Management Plan are due July 26. Photo from South Point Resources Management Plan |
Installation of an entrance gate at the intersection of Kalae Road and South Point Road, and a security booth .75 miles north of the intersection, along South Point Road;
Two designated parking areas at the "Barracks" near the Kaulana Boat Ramp and at Ka Lae;
A cultural interpretive walking trail at Ka Lae with associated signage and protective barriers around cultural sites; and
A pedestrian path and an emergency access road extending from the "Barracks" to Mahana, Green Sands Bay.
Comments are welcomed "on any issues, policies, or regulations that your agency or organization would like to see addressed in the Draft Environmental Assessment related to the proposed actions," the letter concludes. Fa`anunu can be reached at 808-227-8855 or faanunu@townscapeinc.com.
To read comments, add your own, and like this story, see Facebook. Follow us on Instagram and Twitter.
![]() |
| The land where the Hawaiian Springs Water Bottling Plan was planned for Pahala is going up for auction on July 28. |
A FORECLOSURE AUCTION FOR THE PROPOSED HAWAIIAN SPRINGS WATER BOTTLING PLANT SITE IN PAHALA is scheduled for the courthouse in Hilo on Friday, July 28 at noon. Up for auction will be the 60 acres that includes the old Ka`u Sugar Mill site and its warehouse, the old Pahala Plantation Store and KAHU Radio building, and the tunnel to the fresh water spring where the bottling company had planned to extract water. The auction also includes a .06 acre lot with the building that housed Office of Economic Opportunity and in sugar community days, a restaurant in the camp housing area.
An open house for prospective bidders will be held on Sunday, July 9 and 10 from 10 a.m. to noon.
![]() |
| Sierra Club flier regarding proposed Pahala Town Square & Hawaiian Springs Facility. |
The plan called for more than 130,000 square feet of buildings, more than three times the size of the new Ka`u District Gym. Included were tour bus and van parking stalls and 10,000 square feet of retail space. Concerns voiced by the community included preservation of historic buildings and an old sugar mill yard wall, maintaining the quiet residential neighborhoods and walkable streets near the old mill site, the number of jobs that would be created by the bottling plant, and questions about using the aquifer to fill plastic bottles with water that would be sold out of the state for use in Asia and other international markets.
The Notice of Foreclosure reveals that Third Circuit Court ordered the sale of the property after John N. Sarado sued PMK Partners, LLC for money owed on the property. The estimated debt is approximately $1.4 million owed by PMK Partners to Sarado. However, the auction will be held with no upset price. The court appointed an attorney, Louis P. Mendonca, of Hilo, to be the commissioner for the auction. He can be reached at 961-6690.
The auction on July 28 will be at the entrance area of Hale Kaulike, the State Judiciary Building at 777 Kilauea Ave. in Hilo. Anyone bidding must provide at least 10 percent of the winning bid in cash, money order or certified or chashier's check at the auction. Potential bidders must be able to provide proof of ability to comply with paying the 10 percent in order to participate in the auction.
To read comments, add your own, and like this story, see Facebook. Follow us on Instagram and Twitter.
Coffee Talk, Fri, June 30, 9:30 – 11 a.m., Kahuku Unit of Hawai‘i Volcanoes National Park. An informal conversation on a wide variety of topics. Ka‘ū coffee, tea and pastries available for purchase. Free.
Ocean View Community Development Corp. meeting, Fri, June 30, 5 p.m., Hawaiian Ranchos office.
Ham Radio Operators Potluck Picnic, Sun, July 2, Manukā Park. All American Radio Emergency Service members, anyone interested in learning how to operate a ham radio and families are invited to attend. Dennis Smith, 989-3028
Painting with Peggy, Mon, July 3 & 17, 12 p.m., Volcano Art Center in Volcano Village. $20/$15 VAC members. 967-8222
| Volcano parade on July 4 at 9 a.m. will be followed by the Na`alehu Independence Day Parade and Rodeo on Saturday, July 8. Photo by Julia Neal |
Volunteer Fire Department Meeting, Mon, July 3, 4 p.m., Ocean View Community Center. 939-7033
Volcano Village Fourth of July, Tue, July 4. Parade begins at 9 a.m. at Post Office and ends at Cooper Center, where family festivities continue.
Fourth of July Breakfast Buffet, Tue, 6:30 – 11 a.m., Kīlauea Military Camp’s Crater Rim Café in Hawai‘i Volcanoes National Park. Sweet bread French toast, omelet station, bacon, pork patties, breakfast potatoes, steamed rice, oatmeal with raisins, watermelon & a beverage. Adults $12; children 6 –11 $6. Open to authorized patrons & sponsored guests. Park entrance fees apply. 967-8356
Volcano Village Fourth of July, Tue, July 4. Parade begins at 9 a.m. at Post Office and ends at Cooper Center, where family festivities continue.











